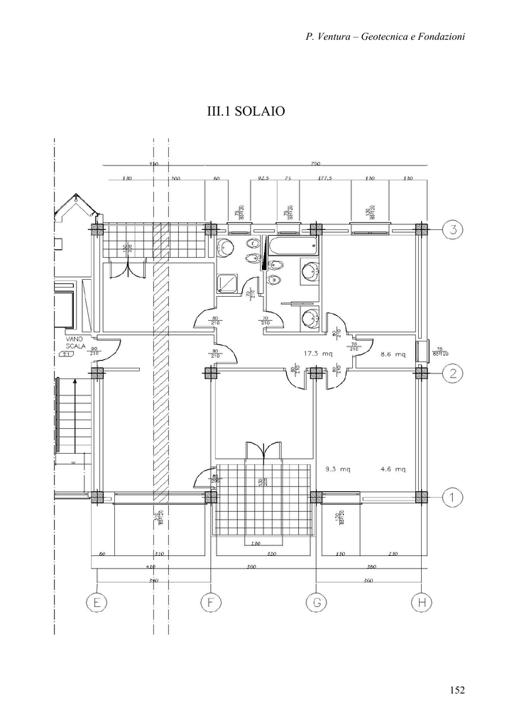
III.1 SOLAIO

Transcript

III.1 SOLAIO
P. Ventura – Geotecnica e Fondazioni
III.1 SOLAIO
152
P. Ventura – Geotecnica e Fondazioni
III.1.1 ANALISI DEI CARICHI
Fig. 15 ESEMPI DI TIPOLOGIE DI SOLAI
SOLAIO DI COPERTURA A TERRAZZO
Neve Roma qqsk = 1.15kN/m2
Sovraccarico acc. qq = 2.0 kN/m2; q = 1.0 kN/m;
Q=2.0 kN/m2
SOLAIO D’ABITAZIONE
KN/m3 Quantità (m) KN/m2
20
0.012
0.24
0.050
0.95
12
12
0.008
0.10
0.50
5
0.10=2%l
0.80
20
0.040
8
0.42x0.20/0.50 1.35
25
0.08x0.20/0.50 0.80
0.020
0.40
20
pp =5.05
pp+qq =7.05
KN/m2 Quantità (m) KN/m2
20
0.015
0.30
19
0.030
0.57
25
0.050
1.25
0.12x0.20/0.50l 1.20
25
8
0.38x0.20/0.20 1.22
20
0.020
0.40
pp =4.95
pp+qq =7.95
Sovraccarico acc. qqsk = 2.0kN/m2; Q=2.0kN
Tramezzi q = 1.0 kN/m ; qq = 1.0 kN/m2 min equivalente
SOLAIO PER MAGAZZINO E AUTORIMESSA
KN/m3 Quantità (m) KN/m2
20
0.015
0.30
19
0.030
0.57
25
0.050
1.00
1.5
0.45x0.18/0.60 0.20
25
0.040
1.00
25
0.10x0.18/0.60 0.75
20
0.020
0.30
pp =4.15
pp+qq =9.75
153
P. Ventura – Geotecnica e Fondazioni
SCELTA DELLE UNITA’ DI MISURA
Nel presente dimensionamento viene usata come unità di misura della
resistenza, anziché il Mpa (megapascal), come negli usuali programmi di
calcolo:
1MPa = 1
Kg p
MN
N
t
=
1
=
10
= 100 2
2
2
2
m
mm
cm
m
viene usato il KiloNewton/cm2:
1
Kg p
t
KN
MN
=
100
= 10 MPa = 10 2 = 1000 2
2
2
cm
cm
m
m
sia per fare direttamente riferimento alla sigla con cui in Italia è denominato
l’acciaio, sia per avere le dimensioni di progetto direttamente in centimetri.
Si ricorda inoltre l’equivalenza fra le unità di misura, la grandezza scalare
della pressione , o per quella vettoriale della tensione, che si utilizzavano in
passato:
1
1
Kg p
cm
2
Kg
cm
2
= 10
t
= 1 atm = 10 m H 2 O = 760 mm Hg
m2
= 0.1
MN
N
KN
= 0.1
= 0.01 2 = 0.1 MPa
2
2
m
mm
cm
154
P. Ventura – Geotecnica e Fondazioni
SCELTA DEI MATERIALI
NORMATIVA
’92
RESISTENZE DI CALCOLO DEL CONGLOMERATO
ƒ
METODO DELLE TENSIONI AMMISSIBILI
RCK − 15
( N / mm 2 )
4
R − 15
τ C 0 = 0.4 + CK
( N / mm 2 )
75
R − 15
τ C max = 0.4 + CK
( N / mm 2 )
35
σ C amm = 6 +
RESISTENZA
TENSIONI
TENSIONI AMMISSIBILI
TENSIONI TANGENZIALI
TENSIONI
CUBICA
AMMISSIBILI
NORMALI
AMMISSIBILI
TANGENZIALI MAX
Rck ( N / mm 2 )
σC amm ( N / mm 2 )
0.7 σC amm ( N / mm 2 )
7.25
8.50
9.75
11.00
12.25
13.50
20
25
30
35
40
45
ƒ
NORMATIVA ’ 96
ƒ
f cd es =
( 0.4 + 0.6 ) f ck
γc
f ck ( N / mm
(20)
(25)
(30)
(35)
(40)
(45)
f cd
f Cd
)
= 0 . 4 f Ck / γ C
6 ,6 4
8 ,3 O
9 ,9 6
1 1 ,6 2
1 3 ,2 8
1 4 ,9 4
1 6 .6 0
2 0 .7 5
2 4 .9 0
2 9 .0 5
3 3 ,2 0
3 7 ,3 5
= f ck / 2 ,5
f ck / 2 ,5
ƒ
τc max
0.47
0.53
0.60
0.67
0.73
0.80
1.54
1.69
1.83
1.97
2.11
2.26
RESISTENZE DI CALCOLO DELL’ACCIAIO σa = 0.5 f yk
RESISTENZE DI CALCOLO DEL CONGLOMERATO
STATO LIMITE DI ESERCIZIO E ULTIMO
P
 AMBIENTE  POCO
AGGRESSIVO
A
( 0.4 + 0.6 )0.83 Rck 
=

1.0
R
 CARICHI RARI
 CARICHI QUASI PERMANENTI Q
S .L .E .: A + Q
R E SI ST E N Z A
C I L I N D R I2C A
5.07
5.95
6.82
7.70
8.75
9.45
τc 0
f cd ult =
f ck
γc
=
0.83 Rck
1,6
S .L .E .: A + R
S .L .E .: P + Q
S .L .E .: P + R
f Cd = 0 . 5 f Ck / γ C
f Cd = 0 . 45 f Ck / γ C
f Cd = 0 . 60 f Ck / γ C
8 ,8 3
1 1 ,0 4
1 2 ,4 5
1 4 ,5 2
1 7 ,0 1
1 8 ,6 7
7 ,4 7
9 ,9 3
1 1 ,2 O
1 3 ,0 7
1 4 ,9 4
1 6 ,8 1
9 ,9 6
1 2 ,4 5
1 4 ,9 4
1 7 ,4 3
1 9 ,9 2
2 2 ,4 1
1 0 ,3 7
1 2 ,9 7
1 5 ,5 6
1 8 ,1 6
2 0 ,7 5
2 3 ,3 4
f ck / 1 .6
f ck / 1 . 6
f ck / 2 ,0
f ck
/ 2 ,2
S .L .U .: P + R
f cdk ( N / mm
2
)
RESISTENZE DI CALCOLO DELL’ACCIAIO
CARICHI QUASI PERMANENTI
f Sd = 0.5 f yk
f yk / γ S
CARICHI RARI
f Sd = 0 .7 f yk
γ S = 1. 0 ÷ 1. 5
155
P. Ventura – Geotecnica e Fondazioni
Feb44K→ f = 44KN / cm 2
yk
CONTROLLATO IN STABILIMENFeb44
→ f = 44 / 1.15 = 38.26 KN / cm 2
yk
NON CONTROLLATO
156
P. Ventura – Geotecnica e Fondazioni
AZIONI DI CALCOLO
(estratto dalla Gazzetta Ufficiale n°29 del 5 Febbraio 1996)
Le verifiche devono essere condotte nei riguardi degli stati limite d’esercizio e
degli stati limite ultimi, vedi figure 6 a,b in I.4.
Le azioni sulla costruzione devono essere cumulate in modo da determinare
condizioni di carico tali da risultare più sfavorevoli ai fini delle singole verifiche,
tenendo conto della probabilità ridotta di intervento simultaneo di tutte le
azioni con i rispettivi valori più sfavorevoli, come prescritto nelle normative
vigenti.
Per gli stati limite ultimi si adotteranno le combinazioni del tipo:
i =n

Fd = γ g G k + γ p Pk + γ q Q Ik + ∑ (ψ 0 i Qik
i =2


)

essendo:
Gk
il valore caratteristico delle azioni permanenti;
Pk
il valore caratteristico della forza di precompressione;
QIk
il valore caratteristico dell’azione di base di ogni combinazione;
Qik
i valore caratteristici delle azioni variabili tra loro indipendenti;
γg
1,4 (1,0 se il suo contributo aumenta la sicurezza);
γp
0,9 (1,2 se il suo contributo diminuisce la sicurezza);
γq
1,5 (0 se il suo contributo aumenta la sicurezza
ψ
coefficiente di combinazione allo stato limite ultimo da determinarsi
sulla base di considerazioni statistiche.
Qualora le deformazioni esercitino una azione significativa sullo stato
limite ultimo considerato se ne deve tenere conto applicando loro un
coefficiente di 1,2.
Il contributo delle deformazioni impresse, non imposte appositamente,
deve essere trascurato se a favore della sicurezza.
Per gli stati limite d’esercizio si devono prendere in esame le
combinazioni rare, frequenti e quasi permanenti con
γ g = γ p = γ q = 1,
157
P. Ventura – Geotecnica e Fondazioni
e applicando ai valori caratteristici delle azioni variabili adeguati
coefficienti :ψ 0 ,ψ 1 ,ψ 2 .
In forma convenzionale le combinazioni possono essere espresse nel modo
seguente:
combinazione rare
i =n
Fd = Gk + Pk + QIk + ∑ (ψ 0 i Qik )
i =2
combinazioni frequenti
i=n
Fd = G k + Pk + ψ II Q Ik + ∑ (ψ 2 i Qik )
i=2
combinazioni quasi permanenti
i =n
Fd = G k + Pk + ∑ (ψ 2 i Qik )
i =2
ψ0i
coefficiente atto a definire i valori delle azioni assimilabili ai frattili di ordine
0,95 delle distribuzioni dei valori istantanei,
ψ2i
coefficiente atto a definire i valori quasi permanenti delle azioni variabili
assimilabili ai valori medi delle distribuzioni dei valori istantanei.
In mancanza di informazioni adeguate si potranno attribuire ai coefficienti
ψ 0 ,ψ 1 ,ψ 2 i valori seguenti:
AZIONE
ψ0
ψ2
ψ0
0.7
0.5
0.2
0.7
0.6
0.3
0.7
0.7
0.6
0.7
0.2
0
CARICHI VARIABILI NEI
FABBRICATI PER:
abitazioni
uffici, negozi, scuole,
autorimesse
vento, neve
158