C:\Documents and Settings\Administrator\Documenti\Disegni\Corso

Transcript

C:\Documents and Settings\Administrator\Documenti\Disegni\Corso
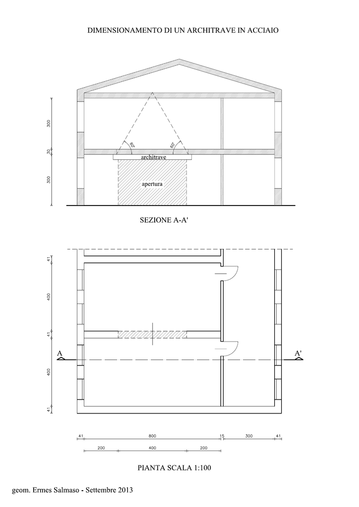
1 DIMENSIONAMENTO DI UN ARCHITRAVE IN ACCIAIO L’architrave è un elemento strutturale notevolmente semplice ma riveste una particolare importanza tecnologica nel settore delle trasformazioni degli edifici a struttura muraria, quando si vuole eseguire una nuova apertura. Il profilo metallico deve essere particolarmente abbondante per contenere al massimo i fenomeni deformativi e non provocare lesioni nelle strutture adiacenti. Anche la posa di un architrave, che può sembrare banale, deve essere condotta in modo da non produrre cedimenti nelle strutture superiori. Possibilmente, è sempre meglio montare almeno due profili in modo da non liberare completamente il varco. E’ sempre fondamentale: 1) porre in opera elementi provvisionali e forzare staticamente i solai che si appoggiano sulla muratura su cui si interviene. 2) eseguire le aperture verticali in corrispondenza delle mazzette, appoggi della struttura di architrave. 3) integrare la muratura esistente, ovvero rimontare, all’interno delle aperture eseguite, nuove mazzette in mattoni pieni murati con malta cementizia, fortemente ammorsate con gli elementi presenti. 4) eseguire la traccia orizzontale e la posa del primo profilo metallico. 5) calzare fortemente l’ala superiore del profilo contro la muratura, usando piastre metalliche o scaglie lapidee o laterizie, e malta cementizia antiritiro. 6) procedere alla posa in opera del secondo profilo con le stesse modalità precedenti. 7) demolire la posizione centrale di muratura. Si dimensioni la trave in acciaio Fe 360 del tipo IPE300 (secondo UNI 5397‐78) La luce teorica risulta l0 = 1,05 x 4,00 = m. 4,20 Analisi dei carichi: solaio, carichi permanenti = 500 Kg/mq , variabili = 200 Kg/mq q = (500+200) = 700Kg/mq primo solaio = 700 x 4 = 2800Kg/m secondo solaio = 700 x 4 = 2800 Kg/m muro superiore in mattoni pieni (1700 x 0,41) = 697 Kg/mq 697 x ( 4,20 x tg. 60° x 0,67) = 1698,58 Kg/m 2 0,67 = algoritmo che approssima il triangolo di muratura in un rettangolo (effetto arco) geom. Ermes Salmaso ‐ Settembre 2013 2 peso proprio trave IPE300 = 84,4 Kg/m q totale = 7383 Kg/m = 73,83 kN/m le sollecitazioni massime risultano Mmax = 7383 x 4,202 = 16279 Kgm = 162,79 kNm 8 Tmax = 7383 x 4,20 = 15504 Kg = 155,04 kN 2 necessita un modulo di resistenza W =__M__ = 1627900 = 1017,44 cm3 σamm 1600 scegliamo di utilizzare due profili accoppiati IPE300 W = 557 x 2 = 1114 cm3 J = 8356 x 2 = 16712 cm4 All’appoggio per la massima sollecitazione tagliante abbiamo: τmax = _______T/2_______ = __15504/2__ = 391,9 Kgcm2 Area x Anima IPE300 27,86 x 0,71 τamm = _ σamm_ = _1600 _= 924,8 Kgcm2 1,73 verifichiamo la deformabilità della trave imponendo come da regolamento: ƒlim = _l0__ = _420_ = 0,84 cm (freccia ammessa) 500 500 ƒmax = __5__ x _q x l4_ = __5__ x ____7383 x 4204____ = 0,85 cm (freccia massima) 384 E x Jx 384 2100000 x 8356 x 2 Il regolamento va preso come guida e non alla lettera deve essere sempre assoggettato a valutazioni critiche, in pratica la trave resiste ma il muro sovrastante si fessura. La freccia così determinata è chiamata anche freccia a tempo infinito, in considerazione che sopra alle travi IPE300 abbiamo un muro e non vogliamo fessurazioni, è meglio adottare per il calcolo la freccia istantanea, pari a ___l___ = __400__ = 0,4 cm 1000 1000 la nostra freccia massima calcolata supera quella ammissibile. Si può diminuire la freccia aumentando la sezione delle travi, ma questa soluzione spesso non è possibile perché anche la base della trave aumenta e uscirebbe dallo spessore del muro; il peso geom. Ermes Salmaso ‐ Settembre 2013 3 della trave aumenta con costo considerevole, difficoltà di maneggiare le travi, ricordando che non possiamo usare la grù in quanto siamo dentro ad un locale esistente. Una soluzione consigliabile è quella di riempire di calcestruzzo fluido lo spazio esistente tra le due travi. Legge di Hooke: E x ε = σ ε = dilatazioni unitarie La tensione σ (sigma) è proporzionale alla deformazione tramite il coefficiente E (modulo di elasticità). Infatti, esso rappresenta la tensione che si genera in un determinato materiale per effetto di una deformazione unitaria. SEZIONI NON OMOGENEE Riempiendo di calcestruzzo l’area tra le due putrelle IPE300, abbiamo un modulo E diverso, cambia il J, omogeneizzando la sezione ad uno dei due materiali tramite il coefficiente di omogeneizzazione troviamo il nuovo J. In questi casi si adotta un procedimento tramite il quale uno dei due materiali viene trasformato nell’altro e il problema è ricondotto al caso di sezione omogenea. n = _Ea_ = ___2.100.000 Kg/cm2____ Ec 200.000‐400.000 Kg/cm2 Il rapporto fra i moduli di elasticità prende il nome di coefficiente di omogeneizzazione J = _1_ x 15 x 283 = 27440 cm4 12 riduco tutto ad acciaio e divido per n n = _2.100.000_ = 7 300.000 Jc = _27440_ = 3920 cm4 7 Jtot = Jc + JIPE300 = 3920 + 16712 = 20632 cm4 Un'altra soluzione è quella di inserire delle piastre da collegarsi alle ali delle travi IPE300 mediante un cordone di saldatura continua. VERIFICA DELLE TRAVI IPE300 RINFORZATE CON PIASTRE Unisco le due travi IPE300 con un piatto detto piattabanda b = 340 mm s = 10 mm le due IPE sono scostate tra loro di 60 mm. Lascio volutamente 10 mm di lasco fra la piattabanda e la trave IPE300 per poter eseguire un cordone di saldatura in modo da collegare correttamente le due IPE300 con la piattabanda. Se le saldature sono in regime di sicurezza si possono trattare travi e piattabande come fossero un tutt’uno. geom. Ermes Salmaso ‐ Settembre 2013 4 VERIFICA σa = _Mmax_ = _1627900_ ≤ 1600 Kg/cm2 Wx 1114 Yxx = 2 x (YxIPE300 + _1_ x 13 x 34 + A x d x G2) = 12 = 2 x [8356 + 2,83 + (34 x 1) x 15,52] = 33054 cm4 WX = _JXX_ = _33054_ = 2132 cm3 YMAX 15,5 σa = _16279_ = 7,64 Kg/cm2 2132 VERIFICA DELL’APPOGGIO SU MURO Assumendo per la muratura in mattoni pieni σamm = 22 Kg/cm2 il calcolo per i due profili IPE300 è: T = 15504/2 = 7752 Kg σmax = __2 x T__ = __2 x 7752_ = σamm 2 x b x a 2 x 15 x a da cui a = __2 x 7752__ = 23,49 cm 2 x 15 x 22 che arrotondiamo a 25 cm calcolo della tensione sul muro in mattoni: _σmax x a_ x b = T 2 essendo da cui σmax = __2 x T__ ≤ σamm b x a T = 7752 Kg b = 15 cm a = 25 cm _2 x 7752 _ = _ 15504_ = 20,67 Kg/cm2 2 x 15 x 25 750 Le travi IPE300 appoggiano nel muro per una profondità a = 25 cm e si ammette che le ripartizioni delle tensioni di contatto travi‐muro siano di tipo lineare con tensioni nulle a lembo estremo delle travi e massimo nello spigolo del muro, secondo un diagramma triangolare. geom. Ermes Salmaso ‐ Settembre 2013 5 Sarà opportuno non appoggiare direttamente le due travi IPE300 sul muro di mattoni pieni (trattasi di un vecchio muro esistente con mattoni apparentemente buoni, ma con malta a base di calce, per cui non sappiamo esattamente la vera portata del muro) ma inserire un materiale più resistente come una “pietra dura”, oppure più semplicemente un buon calcestruzzo di spessore pari a circa 20 cm di altezza, 41 cm di larghezza e 25 cm di profondità come la trave. In tal modo la tensione di contatto è supportata con sicurezza da calcestruzzo, la cui tensione ammissibile vale almeno 60 Kg/cm2, mentre la base di calcestruzzo funge da ripartitore del carico sulla sovrastante superficie della muratura di mattoni dove la massima tensione vale: σmax = _2 x 7752 _ = 15,13 Kg/cm2 41 x 25 Alle due estremità dell’architrave è bene prevedere dei giunti di dilatazione. geom. Ermes Salmaso ‐ Settembre 2013 ---.
-/g.
E.2.4.4 Prescrizioni esecutive per posa d i architravi in acciaio in m u r a t u r e esistenti.
- - - - - - - - - . - - -
-
P
P
-
P
P
p
-
--
-- -
presa d'appoggio
Modalità esecutive per aperture di luce superiori ai due metri circa (per aperture i n f h o ri leprescrizionipossono essere semplificate):
l ) Porre in opera elementi provuisionaii a
forzare staticamente i solai che s i appoggiano suUa muratura su cui si interviene.
2) Eseguire le aperture verticali (a) e (b)
in corrispondenza delle mazzette, appoggi della struttura d i architrave.
3) Integrare la muratura esistente, ovvero
rimontare, a l l ' i n t m o delle aperture eseguite, nuove mazzette in mattoni pieni
murati con malta cemmtizia,fortemente
ammorsate con gli elementi presenti.
4) Eseguire la traccia orizzontale e la posa
del primo profilo metallico secondo lo
schema (4) d i figura.
5) Calzarefortemente L'ala superiore del profilo contro la muratura, usando piastre
metalliche o scaglie lapidee o laterizie, e
malta cementizia o antiritiro.
-----
p
- - .. - . -
presa d'appoggio
> 15 cm
6) Procedere alla posa in opera del secondo
profilo con le stesse modalità precedenti.
7) Demolire la porzione centrale di muratura (C).