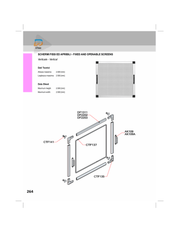
SCHERMI FISSI ED APRIBILI - FIXED AND OPENABLE SCREENS

Transcript

SCHERMI FISSI ED APRIBILI - FIXED AND OPENABLE SCREENS
SCHERMI FISSI ED APRIBILI - FIXED AND OPENABLE SCREENS
Verticale - Vertical
Dati Tecnici
Altezza massima:
2.500 [mm]
Larghezza massima: 2.500 [mm]
Data Sheet
264
Maximum height:
2.500 [mm]
Maximum width:
2.500 [mm]
SCHERMI FISSI ED APRIBILI - FIXED AND OPENABLE SCREENS
Profili di alluminio specifici - Specific aluminium profiles
Verticale - Vertical
Guida modello 1 - Model 1 guide
Dati Tecnici
Codice:
Materiale:
Peso nominale:
Finitura:
DF1311
EN-AW 6060 T5
245 g/mt
Grezzo - Verniciatura
Data Sheet
Code:
Material:
Nominal weight:
Finishing:
DF1311
EN-AW 6060 T5
245 g/mt
Raw - Painting
Guida modello 2 - Model 2 guide
Dati Tecnici
Codice:
Materiale:
Peso nominale:
Finitura:
DF2202
EN-AW 6060 T5
280 g/mt
Grezzo
Data Sheet
Code:
Material:
Nominal weight:
Finishing:
DF2202
EN-AW 6060 T5
280 g/mt
Raw
Guida modello 3 - Model 3 guide
Dati Tecnici
Codice:
Materiale:
Peso nominale:
Finitura:
DF2203
EN-AW 6060 T5
274 g/mt
Grezzo - Verniciatura
Data Sheet
Code:
Material:
Nominal weight:
Finishing:
DF2203
EN-AW 6060 T5
274 g/mt
Raw - Painting
265
SCHERMI FISSI ED APRIBILI - FIXED AND OPENABLE SCREENS
Verticale - Vertical
Versioni realizzabili - Possible solutions
266
Versione A - Version A
Versione B - Version B
Versione C - Version C
Versione D - Version D
SCHERMI FISSI ED APRIBILI - FIXED AND OPENABLE SCREENS
Verticale - Vertical
Accessori base - Basic accessories
Squadretta telaio fisso - Self locking square
Dati Tecnici
Codice:
Angolo di taglio:
Materiale:
Confezione:
CTF135
90°
PA6
100 pezzi (min)
Data Sheet
Code:
Cutting angle:
Material:
Packing:
CTF135
90°
PA6
100 pieces (min)
Squadretta autobloccante - Self locking square
Squadretta regolabile - Adjustable square
Dati Tecnici
Codice:
Per profilo:
Angolo di taglio:
Materiale:
Confezione:
CTF151
DF1311
Variabile
PA6
100 pezzi (min)
Data Sheet
Code:
For Profile:
Cutting angle:
Material:
Packing:
CTF151
DF1311
Changeable
PA6
100 pieces (min)
Piastrina con magnete - Plate with magnet
Dati Tecnici
Codice:
Angolo di taglio:
Materiale:
Confezione:
CTF150
45°
PA6
100 pezzi (min)
Dati Tecnici
Codice:
Predisposizione:
Materiale:
Confezione:
CTF141
CTF135
NdFeB (N45)
100 kit (min)
Data Sheet
Code:
Cutting angle:
Material:
Packing:
CTF150
45°
PA6
100 pieces (min)
Data Sheet
Code:
Predisposition:
Material:
Packing:
CTF141
CTF135
NdFeB (N45)
100 kits (min)
Dati Tecnici
Codice:
Predisposizione:
Materiale:
Confezione:
CTF138
DF2202
PA6
100 pezzi (min)
Data Sheet
Code:
Predisposition:
Material:
Packing:
CTF138
DF2202
PA6
100 pieces (min)
Squadretta autobloccante - Self locking square
Dati Tecnici
Codice:
Per profilo:
Angolo di taglio:
Materiale:
Confezione:
AK111
DF1311
45°
PA6
100 pezzi (min)
Data Sheet
Code:
For profile:
Cutting angle:
Material:
Packing:
AK111
DF1311
45°
PA6
100 pieces (min)
Attacco a muro - Wall bracket
267
SCHERMI FISSI ED APRIBILI - FIXED AND OPENABLE SCREENS
Verticale - Vertical
Accessori base - Basic accessories
Giunti a scomparsa - T shaped joint
Coppia cerniere - Pair of hinges
Dati Tecnici
Codice:
Angolo di taglio:
Materiale:
Confezione:
CTF152
90°
PA6
100 coppie (min)
Data Sheet
Code:
Cutting angle:
Material:
Packing:
CTF152
90°
PA6
100 pairs (min)
Banda magnetica - Magnetic band
Dati Tecnici
Codice:
Per guida:
Confezione:
Data Sheet
Code:
For guide:
Packing:
CTF142
DF1311
Variabile
PA6
100 pezzi (min)
Data Sheet
Code:
For Profile:
Cutting angle:
Material:
Packing:
CTF142
DF1311
Changeable
PA6
100 pieces (min)
Banda magnetica - Magnetic band
Dati Tecnici
Codice:
Per guida:
Confezione:
FX128
DF2203
250/300 metri
(min)
Data Sheet
Code:
For guide:
Packing:
FX128
DF2203
250/300 meters
(min)
CTF143
DF2203
250/300 metri
(min)
CTF143
DF2203
250/300 meters
(min)
Tondino morbido - Pliable rod
Tondino morbido - Pliable rod
268
Dati Tecnici
Codice:
Per profilo:
Angolo di taglio:
Materiale:
Confezione:
Dati Tecnici
Codice:
Diametro:
Materiale:
Confezione:
CTF137
Ø 6,4 [mm]
PVC
20/25 Kg (min)
Dati Tecnici
Codice:
Diametro:
Materiale:
Confezione:
CTF145
Ø 5,4 [mm]
PVC
20/25 Kg (min)
Data Sheet
Code:
Diameter:
Material:
Packing:
CTF137
Ø 6,4 [mm]
PVC
20/25 Kg (min)
Data Sheet
Code:
Diameter:
Material:
Packing:
CTF145
Ø 5,4 [mm]
PVC
20/25 Kg (min)
SCHERMI FISSI ED APRIBILI - FIXED AND OPENABLE SCREENS
Verticale - Vertical
269
SCORREVOLI E SALISCENDI - SLIDING AND UP-DOWN
Verticale - Vertical
Dati Tecnici
Altezza massima:
2.200 [mm]
Larghezza massima: 800 [mm]
Data Sheet
270
Maximum height:
2.200 [mm]
Maximum width:
800 [mm]
SCORREVOLI E SALISCENDI - SLIDING AND UP-DOWN
Profili di alluminio specifici - Specific aluminium profiles
Scorrevole - Sliding Frame
Verticale - Vertical
Fascetta centrale - Central frame
Dati Tecnici
Codice:
Materiale:
Peso nominale:
Finitura:
DF1060
EN-AW 6060 T5
300 g/mt
Grezzo - Verniciatura
Dati Tecnici
Codice:
Materiale:
Peso nominale:
Finitura:
DF1062
EN-AW 6060 T5
500 g/mt
Grezzo - Verniciatura
Data Sheet
Code:
Material:
Nominal weight:
Finishing:
DF1060
EN-AW 6060 T5
300 g/mt
Raw - Painting
Data Sheet
Code:
Material:
Nominal weight:
Finishing:
DF1062
EN-AW 6060 T5
500 g/mt
Raw - Painting
Telaio - Frame
Telaio con riscontro - Frame with leaf
Dati Tecnici
Codice:
Materiale:
Peso nominale:
Finitura:
DF1061
EN-AW 6060 T5
355 g/mt
Grezzo - Verniciatura
Dati Tecnici
Codice:
Materiale:
Peso nominale:
Finitura:
DF1064
EN-AW 6060 T5
450 g/mt
Grezzo - Verniciatura
Data Sheet
Code:
Material:
Nominal weight:
Finishing:
DF1061
EN-AW 6060 T5
355 g/mt
Raw - Painting
Data Sheet
Code:
Material:
Nominal weight:
Finishing:
DF1064
EN-AW 6060 T5
450 g/mt
Raw - Painting
Dati Tecnici
Codice:
Materiale:
Peso nominale:
Finitura:
DF1063
EN-AW 6060 T5
280 g/mt
Grezzo - Verniciatura
Data Sheet
Code:
Material:
Nominal weight:
Finishing:
DF1063
EN-AW 6060 T5
280 g/mt
Raw - Painting
Riscontro - Leaf
271
SCORREVOLI E SALISCENDI - SLIDING AND UP-DOWN
Verticale - Vertical
Versioni realizzabili - Possible solutions
Versione scorrevole - Sliding version
272
Versione saliscendi - UpDown version
SCORREVOLI E SALISCENDI - SLIDING AND UP-DOWN
Verticale - Vertical
Accessori base - Basic accessories
Squadretta anta simmetrica - Square for wing
Dati Tecnici
Codice:
Angolo di taglio:
Materiale:
Confezione:
CSS150
45°
PA6
100 pezzi (min)
Data Sheet
Code:
Cutting angle:
Material:
Packing:
CSS150
45°
PA6
100 pieces (min)
Squadretta anta asimmetrica - Square for wing
Dati Tecnici
Codice:
Per fissaggio:
Angolo di taglio:
Materiale:
Confezione:
CSS151
CSS156
45°
PA6
100 pezzi (min)
Data Sheet
Code:
For fixing:
Cutting angle:
Material:
Packing:
CSS151
CSS156
45°
PA6
100 pieces (min)
Regolo compensatore - Adjuster
Dati Tecnici
Codice:
Materiale:
Confezione:
CSS154
PA6
100 pezzi (min)
Data Sheet
Code:
Material:
Packing:
CSS154
PA6
100 pieces (min)
Dati Tecnici
Codice:
Materiale:
Confezione:
CSS155
PA6
100 pezzi (min)
Data Sheet
Code:
Material:
Packing:
CSS155
PA6
100 pieces (min)
Maniglietta - Handle
Frizione di movimento - Clutch motion
Squadretta telaio - Square for frame
Dati Tecnici
Codice:
Angolo di taglio:
Materiale:
Confezione:
CSS152
45°
PA6
100 pezzi (min)
Dati Tecnici
Codice:
Predisposizione:
Materiale:
Confezione:
CSS156
Scorrevoli-Saliscendi
PA6
100 pezzi (min)
Data Sheet
Code:
Cutting angle:
Material:
Packing:
CSS152
45°
PA6
100 pieces (min)
Data Sheet
Code:
Predisposition:
Material:
Packing:
CSS156
Sliding-UpDown
PA6
100 pieces (min)
273
SCORREVOLI E SALISCENDI - SLIDING AND UP-DOWN
Verticale - Vertical
Accessori base - Basic accessories
Carrello per scorrevoli - Skid for sliding
Dati Tecnici
Codice:
Predisposizione:
Materiale:
Confezione:
CSS158
Scorrevoli
PA6
100 pezzi (min)
Data Sheet
Code:
Predisposition:
Material:
Packing:
CSS158
Sliding
PA6
100 pieces (min)
Tondino morbido rigato - Soft rod striped
Dati Tecnici
Codice:
Diametro:
Materiale:
Confezione:
CSS159
Ø 5,0 [mm]
PVC
20/25 Kg (min)
Data Sheet
Code:
Diameter:
Material:
Packing:
CSS159
Ø 5,0 [mm]
PVC
20/25 Kg (min)
Rotella inserimento rete - Roller insertion net
274
Dati Tecnici
Codice:
Materiale:
Confezione:
CTF160
PA6
2 pezzi (min)
Data Sheet
Code:
Material:
Packing:
CTF160
PA6
2 pieces (min)
SCORREVOLI E SALISCENDI - SLIDING AND UP-DOWN
Verticale - Vertical
275