EP 01 Permesso di costruire senza parere

Transcript

EP 01 Permesso di costruire senza parere
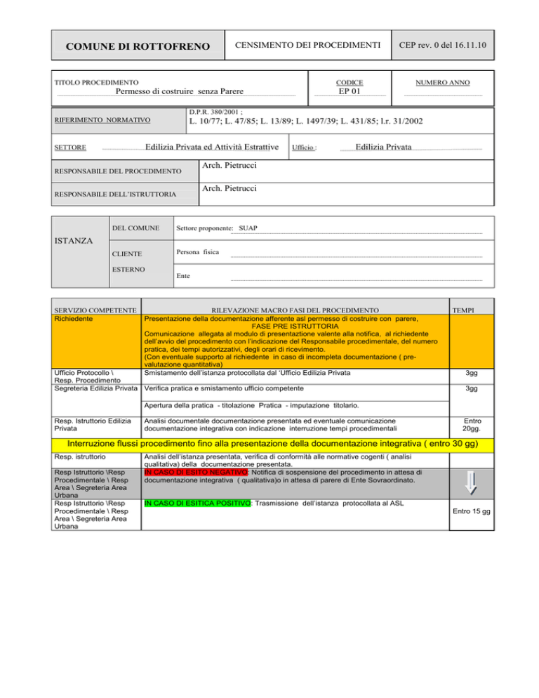
COMUNE DI ROTTOFRENO
CENSIMENTO DEI PROCEDIMENTI
TITOLO PROCEDIMENTO
CEP rev. 0 del 16.11.10
CODICE
Permesso di costruire senza Parere
NUMERO ANNO
EP 01
D.P.R. 380/2001 ;
RIFERIMENTO NORMATIVO
L. 10/77; L. 47/85; L. 13/89; L. 1497/39; L. 431/85; l.r. 31/2002
Edilizia Privata ed Attività Estrattive
SETTORE
RESPONSABILE DEL PROCEDIMENTO
Ufficio :
Edilizia Privata
Arch. Pietrucci
Arch. Pietrucci
RESPONSABILE DELL’ISTRUTTORIA
DEL COMUNE
Settore proponente: SUAP
CLIENTE
Persona fisica
ISTANZA
ESTERNO
Ente
SERVIZIO COMPETENTE
Richiedente
RILEVAZIONE MACRO FASI DEL PROCEDIMENTO
Presentazione della documentazione afferente asl permesso di costruire con parere,
FASE PRE ISTRUTTORIA
Comunicazione allegata al modulo di presentaztione valente alla notifica, al richiedente
dell’avvio del procedimento con l’indicazione del Responsabile procedimentale, del numero
pratica, dei tempi autorizzativi, degli orari di ricevimento.
(Con eventuale supporto al richiedente in caso di incompleta documentazione ( prevalutazione quantitativa)
Smistamento dell’istanza protocollata dal ‘Ufficio Edilizia Privata
Ufficio Protocollo \
Resp. Procedimento
Segreteria Edilizia Privata Verifica pratica e smistamento ufficio competente
TEMPI
3gg
3gg
Apertura della pratica - titolazione Pratica - imputazione titolario.
Resp. Istruttorio Edilizia
Privata
Analisi documentale documentazione presentata ed eventuale comunicazione
documentazione integrativa con indicazione interruzione tempi procedimentali
Entro
20gg.
Interruzione flussi procedimento fino alla presentazione della documentazione integrativa ( entro 30 gg)
Resp. istruttorio
Resp Istruttorio \Resp
Procedimentale \ Resp
Area \ Segreteria Area
Urbana
Resp Istruttorio \Resp
Procedimentale \ Resp
Area \ Segreteria Area
Urbana
Analisi dell’istanza presentata, verifica di conformità alle normative cogenti ( analisi
qualitativa) della documentazione presentata.
IN CASO DI ESITO NEGATIVO: Notifica di sospensione del procedimento in attesa di
documentazione integrativa ( qualitativa)o in attesa di parere di Ente Sovraordinato.
IN CASO DI ESITICA POSITIVO: Trasmissione dell’istanza protocollata al ASL
Entro 15 gg
COMUNE DI ROTTOFRENO
CENSIMENTO DEI PROCEDIMENTI
TITOLO PROCEDIMENTO
CODICE
Permesso di costruire senza Parere
CEP rev. 0 del 16.11.10
NUMERO ANNO
EP 01
A RICEZIONE DELLA DOCUMENTAZIONE INTEGRATIVA
Edilizia Privata \ Messo
In caso di parere negativo : notifica preavviso di diniego \ rigetto istanza
3 gg
Attesa delle eventuali controdeduzione del promotore del’istanza
20 gg
Edilizia Privata
In caso di parere positivo comunicazione a mezzo A\D valente a notifica e richiesta documenti e
versamento contributo di costruzione e diritti di segreteria
3 gg
AL VERSAMENTO CONTRIBUTO DI COSTRUZIONE E DIRITTI DI SEGRETERIA
Protocollo\ Ediliza privata
Ricezione documentazione
1g
Edilizia Privata
Acquisita e verificata la documentazione richiesta si procede al rilascio del permesso di costruire
con pubblicazione all’Albo pretorio
Solo per nuova costruzione, invio modelli all’ISTAT
3 gg.
Messo
Pubblicazione albo pretorio
15 gg
TEMPO MASSIMO CONCLUSIONE
48 gg
1
TIPOLOGIA ATTO FINALE:
Permesso di Costruire / Diniego
NOTE
Il termine per l'inizio dei lavori non può essere superiore ad un anno dal rilascio del titolo; quello di ultimazione, entro il
quale l'opera deve essere completata non può superare i tre anni dall'inizio dei lavori e può essere prorogato, con
provvedimento motivato (senza più allegare documentazioni nel caso in cui la normativa sia rimasta invariata), solo per
fatti estranei alla volontà del titolare del permesso. Un periodo più lungo per l'ultimazione dei lavori può essere concesso
esclusivamente in considerazione della mole dell'opera da realizzare o delle sue particolari caratteristiche tecnicocostruttive
Il permesso decade con l'entrata in vigore di contrastanti previsioni urbanistiche, salvo che i lavori siano già iniziati e
vengano completati entro il termine di tre anni dalla data di inizio
1
+tempi pubblicazioni\attese controdeduzioni
CENSIMENTO DEI PROCEDIMENTI
COMUNE DI ROTTOFRENO
TITOLO PROCEDIMENTO
CEP rev. 0 del 16.11.10
CODICE
Permesso di costruire senza Parere
NUMERO ANNO
EP 01
DA ISTANZA ESTERNA: PROCEDIMENTO DA INSERIRE NELLA CARTA DEI SERVIZI
Che cosa è:
Sono gli interventi caratterizzati da trasformazione urbanistica ed edilizia del territorio.
Che cosa viene chiesto all’utente:
Il cittadino (o il progettista per conto del proprietario) deve inoltrare la domanda, da redigere su apposito stampato, che deve essere compilato in
ogni sua parte; deve inoltre pagare una reversale calcolata secondo quanto disposto dallo strumento urbanistico vigente
Tale domanda deve essere corredata da:
• 3 copie Progetto dell'opera da costruire
• Fotocopia del documento d'identità del richiedente e del progettista incaricato.
• Attestazione di competenza del progettista incaricato
• Relazioni tecniche progetto
• Dichiarazioni di asseverazione come da modulistica del Comune.
E’ importante che la domanda sia compilata in ogni sua parte e che la documentazione, da presentare e corredare alla domanda, sia completa, per
permettere all’Amministrazione di procedere celermente.
L’elenco dei documenti si differenzia in base alla tipologia edilizia ed in riferimento allo strumento urbanistico vigente.
Che cosa deve fare l’ufficio:
Verificare la coerenza della domanda con le normative vigenti e con il Piano Regolatore Generale
Costi per l’utente:
Come da tabella allegata
E’ prevista modulistica ?
SI
X
Moduli assegnabili all’URP?
SI
NO
X
NO
AUTO VALUTAZIONE/AUTO DIAGNOSI - “La voce dei processi”
RILEVAZIONE
GRAVITA’
1
2
3
4
5
6
7
8
9
10
FREQUENZA
1
2
3
4
5
6
7
8
9
10
CRITICITA’
NOTE RELATIVE ALLA CRITICITA’:
• A volte la documentazione presentata dai progettisti è incompleta, sarebbe auspicabile un abaco per la ricezione
delle prime istanze.
Responsabile Procedimento
Firma
Data
Responsabile Istruttorio
Firma
Data