BLP - I.VAR. INDUSTRY Srl

Transcript

BLP - I.VAR. INDUSTRY Srl
BLP
…..
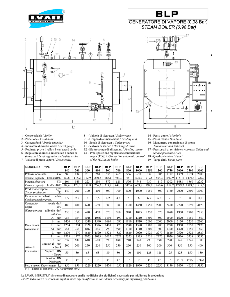
GENERATORE DI VAPORE (0,98 Bar)
STEAM BOILER (0,98 Bar)
1 - Corpo caldaia / Boiler
2 - Portellone / Front door
3 - Camera fumi / Smoke chamber
4 - Indicatore di livello visivo / Level gauge
5 - Rubinetti prova livello / Level check cocks
6 - Regolatore di livello automatico e sonda di
sicurezza / Level regulator and safety probe
7 - Valvola di presa vapore / Steam outlet
MODELLO - TYPE
Potenza nominale
kW
Nominal capacity kcal/h x1000
Potenza focolare
kW
Furnace capacity kcal/h x1000
Produzione vapore
kg/h
Steam production
(1)
Press. camera combust.
mbar
Combust.chamber press.
Contenuto
totale dm³
acqua
- full
Water content a livello dm³
- at level
A mm
B mm
Dimensioni
H mm
Dimensions
A1 mm
L mm
Lt mm
C mm
Camino Ø mm
Attacchi
- Stack
Connections
Vapore DN
- Steam
Scarico DN
- Discharge
Peso a vuoto / Empty weight kg
(1)
8 - Valvola di sicurezza / Safety valve
9 - Gruppo di alimentazione / Feeding unit
10 - Sonda di sicurezza / Safety probe
11 - Valvola di scarico / Discharged valve
12 - Elettropompa di alimentaz. / Feeding pump
13 – Predisposizione regolazione conducibilità
acqua (TDS) / Connection automatic control
of the TDS in the boiler
14 - Passo uomo / Manhole
15 - Passa mano / Handhole
16 - Manometro con rubinetto di prova
Manometer and test cock
17 - Pressostati di servizio e sicurezza / Safety and
service pressure switch
18 - Quadro elettrico / Panel
19 - Targa dati / Datas plate
BLP
140
94
80,8
104
89,4
BLP
200
134
115,2
149
128,1
BLP
300
201
172,9
223
191,8
BLP
400
268
230,5
298
256,3
BLP
500
335
288,1
372
319,9
BLP
700
469
403,3
521
448,1
BLP
800
536
461
596
512,6
BLP
1000
670
576,2
744
639,8
BLP
1250
837
719,8
930
799,8
BLP BLP BLP BLP BLP
1500 1750 2000 2500 3000
1005 1172 1339 1674 2009
864,3 1007,9 1151,5 1439,6 1727,7
1117 1302 1488 1860 2232
960,6 1119,7 1279,7 1599,6 1919,5
140
200
300
400
500
700
800
1000
1250
1500
1750
2000
2500
3000
1,5
2,5
3
3,5
4,2
4,5
5
6
6,5
6,8
7
7
8
8,2
480
480
690
690
880
1080
1310
1460
1950
2200
2450
2720
3690
4120
350
350
470
470
620
760
920
1025
1350
1520
1680
1930
2700
2850
954
1450
1234
754
1270
1775
637
954
1450
1234
754
1270
1775
637
1046
1540
1326
846
1520
2025
618
1046
1540
1326
846
1520
2025
618
1190
1690
1470
990
1522
2027
690
1190
1690
1470
990
1822
2327
690
1310
1810
1590
1110
1820
2325
740
1310
1810
1590
1110
2020
2525
740
1500
2000
1780
1300
2020
2526
790
1500
2000
1780
1300
2270
2776
790
1500
2000
1780
1300
2520
3026
790
1620
2120
1900
1420
2520
3026
845
1750
2250
2050
1550
2822
3338
1245
1860
2360
2170
1660
2820
3335
1300
200
200
250
250
250
250
250
250
300
300
300
350
350
400
50
50
65
65
80
80
100
100
125
125
125
125
150
150
1"
1"
1"
1"
1"
1"
1"
1"
1"
1"
1"
1"1/2
1"1/2
1"1/2
850
850
1220
1220
1470
1650
1820
1970
2230
2530
3150
3470
4650
5150
acqua di alimento 70°C / feedwater 70°C
La I.VAR. INDUSTRY si riserva di apportare quelle modifiche che giudicherà necessarie per migliorare la produzione
I.VAR. INDUSTRY reserves the right to make any modifications considered necessary for improving production