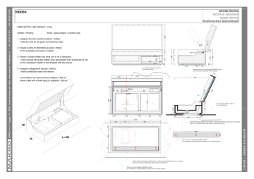
HIDDEN scheda tecnica technical datasheet tarjeta técnica

Transcript

HIDDEN scheda tecnica technical datasheet tarjeta técnica
PESO NETTO / NET WEIGHT 47 Kg
20 Kg cassa di legno / wooden case
502
Imballo / Packing:
1 - eseguire foro per scarichi sul piano / mobile
make the hole for the pipes and electrical cable
15
340
cavo elettrico tessile L 200 cm
con spina Schuko
4 - eseguire collegamenti idraulici / elettrici
make connections water and electric
300
245
285
170
15
170
60
20
360
115
115
20
130
3 - fissare il lavabo Hidden alla dima con le viti in dotazione
( nello zoccolo del lavabo hidden sono già presenti 2 fori svasati per le viti)
fix the washbasin Hidden to the template with the screws
40
115°
2 - fissare la dima di riferimento al piano / mobile
fix the template to the plane / cabinet
80
130
foro svasato per vite di fissaggio HIDDEN a dima
hole for screw fixing hidden with template
115
1.000
295
780
15
cavo elettrico con spina schuko integrata L 200 cm
power cable with schuko plug it's supplied L 200 cm
Ø25 mm
100
-6
689
550
180
Ø 45 mm
75
355
-6
15
15
170
-950
cavo elettrico tessile L 200 cm
con spina Schuko
170
550
520
5°
11
50
460
50
359
50
30
30
490
1.000
220
630
FORO PER PASSAGGIO TUBATURE / CAVO ELETTRICO (dimensione consiliata)
hole for the pipes and electrical cable (recommended size)
dima in pvc per fissaggio HIDDEN a piano
pvc template for fixing washbasin Hidden to the console/ cabinet
FORO PER PASSAGGIO TUBATURE / CAVO ELETTRICO (dimensione consiliata)
hole for the pipes and electrical cable (recommended size)
dima in pvc per fissaggio HIDDEN a piano
pvc template for fixing washbasin Hidden to the console/ cabinet
10 0 3 2 9
L=100
300
55
80
908
HI DD E N 5 5 x 1 0 0 x H 3 0
75
30
150
175
MAKRO srl v.1° maggio, 15 - 35030 - bastia di rovolon pd - italia - www.makro.it / [email protected] - t. +39 . 049 99 10 951 _ f. +39 . 049 99 10 976
scheda tecnica
technical datasheet
tarjeta técnica
technisches Datenblatt
HIDDEN